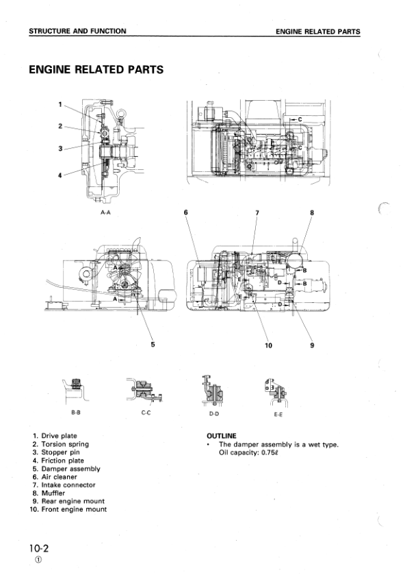
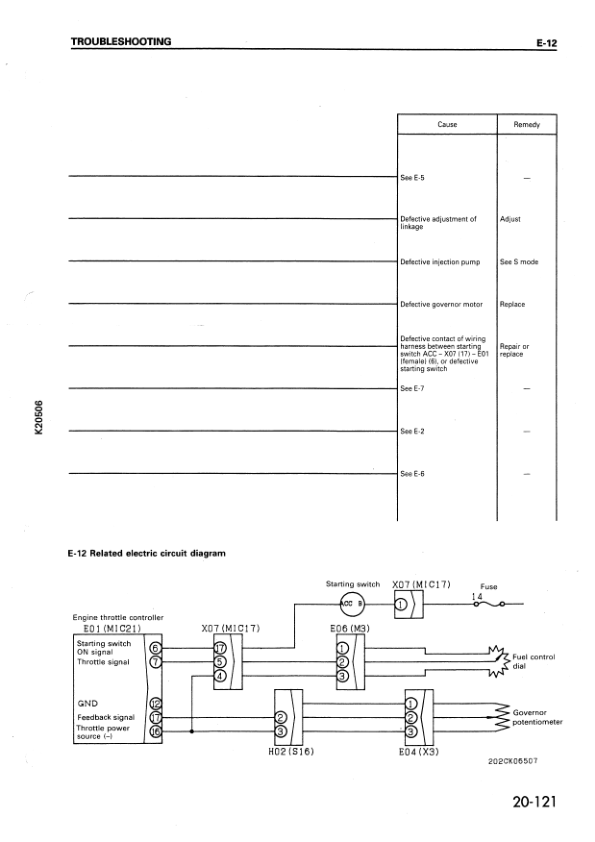
Komatsu PC210 210LC-6K PC240 240LC PC240NLC-6K Excavator Workshop Manual
15 $
Manual Type: Workshop Manual
Brand: Komatsu
Number Pages: 676
Document size: 55.39 MB
Format: PDF
Language(s): English
15 $
Manual Type: Workshop Manual
Brand: Komatsu
Number Pages: 676
Document size: 55.39 MB
Format: PDF
Language(s): English














Reviews
There are no reviews yet.