Description
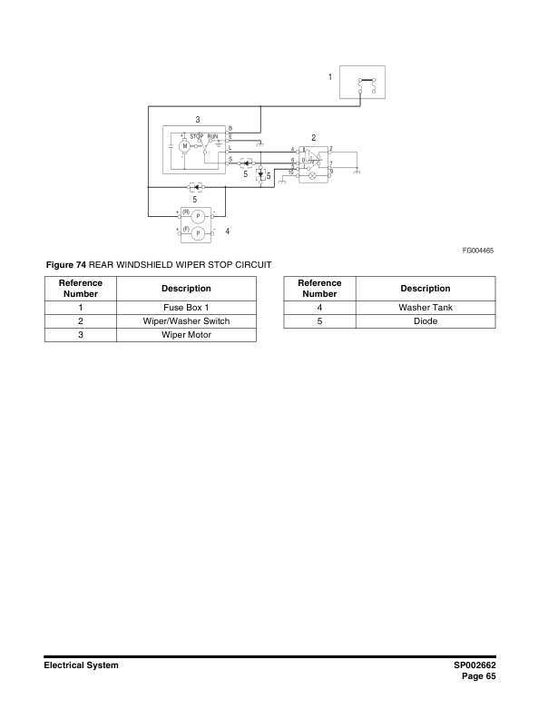
Doosan DL250-3 Wheel Loader Workshop Manual 10001 and Up. This comprehensive workshop manual provides detailed service and repair information for Doosan DL250-3 wheel loaders with serial numbers 10001 and up. It contains step-by-step instructions, diagrams, and troubleshooting guides to assist technicians in performing maintenance and repairs effectively.















Reviews
There are no reviews yet.